Außenbereich der Realschule am Schulzentrum Hackenbroich

Raum für neue Synergien

Realschule Hackenbroich

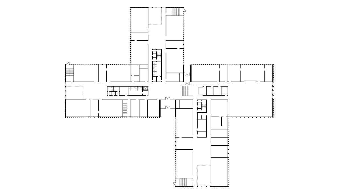
Für das Schulzentrum Hackenbroich haben wir gemeinsam mit Kleusberg ein Konzept für einen identitätsstiftenden Neubau entwickelt, der durch seine markante Holzfassade und eine fließende Verzahnung mit dem Außenraum überzeugt. Die dreiflügelige Gebäudefigur formuliert mit einem weitläufigen Vorplatz eine klare Adresse zur Dr.-Geldmacher-Straße, während der westliche Flügel den geschützten Pausenhof rahmt und das Volumen maßstäblich in die Umgebung einfügt. Das Innere wird durch ein zenitbelichtetes Foyer geprägt. Als zentraler Treffpunkt verbindet es alle Funktionsbereiche auf kurzen Wegen und schafft mit der angeschlossenen Mensa ein flexibles Bindeglied zum benachbarten Gymnasium. Die pädagogische Struktur folgt dem Prinzip moderner Lerncluster, in denen sich Klassen- und Differenzierungsräume um offene Lernzonen gruppieren und so vielfältige Lernangebote ermöglichen.

Außenbereich der Realschule am Schulzentrum Hackenbroich

Der Außenraum fungiert als erweitertes Klassenzimmer: Mit Sitzmauern eingefasste Rasenplateaus und eine weitläufige Bewegungslandschaft laden zur aktiven Erholung ein. Ein tiefer Dachüberstand bietet Witterungsschutz, während extensiv begrünte Dachflächen das Mikroklima nachhaltig verbessern.
Konstruktiv setzt das Projekt auf einen ökologischen Modulbau mit regionaler Holzfassade. Die vertikalen Lamellen verleihen dem Baukörper warme, einladende Haptik und plastische Tiefe. Das Konzept stellt einen Beitrag dar für zukunftsweisenden Bildungsbau, der ökologische Verantwortung und hohe Aufenthaltsqualität vereint.

Klassenraum der Realschule am Schulzentrum Hackenbroich
Foyer der Realschule am Schulzentrum Hackenbroich
Foyer der Realschule am Schulzentrum Hackenbroich
Foyer der Realschule am Schulzentrum Hackenbroich
Klassenraum der Realschule am Schulzentrum Hackenbroich
  • Projektart

    Neubau

  • Funktion

    Bildungsbau

  • BGF

    9.606 m²

  • Baukosten

    35.014.000 €

  • Projektstand

    In Planung

  • Auftragsart

    Wettbewerb

  • Auszeichnung

    1. Preis

  • Leistungsphasen

    LP1 – LP2

  • Mitarbeiter*innen

    Davide Rosa