Vorplatz der Sonnengrundschule Oranienburg.

Lernen im Quartier

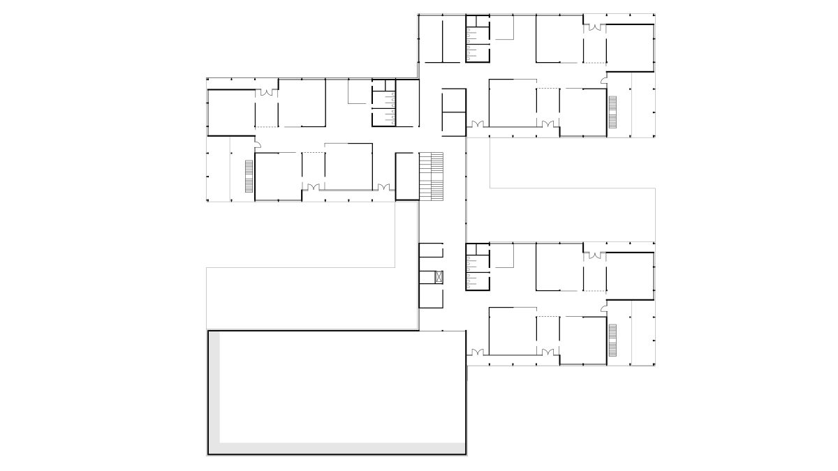
Sonnengrundschule Oranienburg

Der Neubau der Sonnengrundschule bildet den räumlichen Übergang zwischen dem neuen Wohnquartier im Osten und den bestehenden Bildungsbauten im Süden. Durch Maßstäblichkeit, gegliederte Baukörper und differenzierte Höhen fügt sich das Gebäude selbstverständlich in das heterogene Umfeld ein und schließt den Grünzug nach Westen stadträumlich ab. Ein klar gefasster Gebäuderücksprung markiert den Zugang zur Schule und öffnet sich zu einem Vorplatz mit Aufenthaltsqualität, der zugleich als Quartiersplatz dient. Zwischen den Gebäudeflügeln entstehen Höfe, die das Schulgebäude mit der Wohnbebauung im Osten sowie dem Schulhof und den Sportflächen im Westen verknüpfen. Im Erdgeschoss bildet eine Abfolge transparenter Gemeinschaftsräume die Mitte der Schule. Foyer, Aula, Mensa und Ganztagsbereiche sind eng miteinander verbunden und flexibel nutzbar. Die Sporthalle ist am Vorplatz angeordnet und unabhängig vom Schulbetrieb separat erschließbar. Die Jahrgangscluster der Obergeschosse gruppieren sich übersichtlich um das zentrale Treppenhaus. Die Unterrichts- und Horträume sind in klar strukturierten Compartments organisiert. Lerninseln, Differenzierungsräume und Rückzugsbereiche ermöglichen vielfältige pädagogische Nutzungen. Loggien und Außentreppen schaffen direkte Bezüge zu den Außenräumen und sorgen für Verschattung. Der Neubau ist als modularer Holzbau konzipiert. Holz prägt Tragwerk und Erscheinungsbild und ermöglicht eine flexible, nachhaltige Bauweise. Dachbegrünungen und Photovoltaikanlagen ergänzen das ökologische Konzept. Die Freianlagen greifen die innere Struktur der Schule auf und bieten vielfältige Spiel-, Bewegungs- und Aufenthaltsräume. Klimagerechte Vegetation und Retentionsflächen unterstützen ein nachhaltiges Regenwassermanagement. So entsteht eine zukunftsfähige Grundschule, die Lernen, Gemeinschaft und Quartier räumlich verbindet.

Foyer der Sonnengrundschule Oranienburg.
  • Projektart

    Neubau

  • BGF

    8.806 m²

  • Baukosten

    40.460.000 €

  • Projektstand

    In Planung

  • Auftragsart

    Wettbewerb

  • Auszeichnung

    1. Preis

  • Leistungsphasen

    LP1 – LP2

  • Mitarbeiter*innen

    Matthias Gall

  • Visualisierung

    THIRD