Vorplatz des Begegnungszentrums in Berlin

Ein Haus für das Quartier

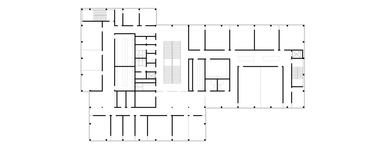
Begegnungszentrum Berlin

Der Neubau zeichnet sich durch eine klare Raumstruktur aus, die die unterschiedlichen Nutzungsgruppen – Jugendtheaterwerkstatt, Seniorenclub und Stadtteilcafé – in drei unterschiedlichen Gebäudeteilen vereint. Der Entwurf reagiert geschickt auf die benachbarten Gebäude und integriert sich harmonisch in den Stadtraum, insbesondere durch die Staffelung des Volumens nach Südwesten. Der einladende Eingangsbereich ist transparent und zentral, wodurch eine gute Orientierung im Gebäude ermöglicht wird. Das Foyer fungiert als verbindende Achse und erlaubt flexible Nutzungsmöglichkeiten, sowohl für den Seniorenclub als auch für das Stadtteilcafé. Die Räume können bei Bedarf miteinander kombiniert werden. Der Bereich rund um das Stadtteilcafé und das Foyer belebt zudem den öffentlichen Raum und schafft eine einladende Atmosphäre.

  • Projektart

    Neubau

  • Funktion

    Kultur und Soziales

  • BGF

    5.194 m²

  • Baukosten

    21.600.000 €

  • Projektstand

    In Planung

  • Auftragsart

    Wettbewerb

  • Auszeichnung

    1. Preis

  • Leistungsphasen

    LP2 – LP8

  • Mitarbeiter*innen

    Hamed Amini
    Susanne Boss
    Svenja Christian
    Ruben Stadler
    Alexander Wild

  • Visualisierung