
Timber construction kit
More space. More future.
In the middle of a mature residential area in the north of Berlin, the project extends over a gross floor area of around 9,000 m² and over 100 apartments in new and existing buildings, a future building block for urban development, based on a sustainable approach, social standards and clarity of design. For JOPE Real Estate AG, sehw planned the densification and extension of a residential ensemble from the 1930s in Berlin-Reinickendorf. The result is a neighborhood building block that creates space in a variety of ways: for new living models, for social mixing, for ecological innovation.



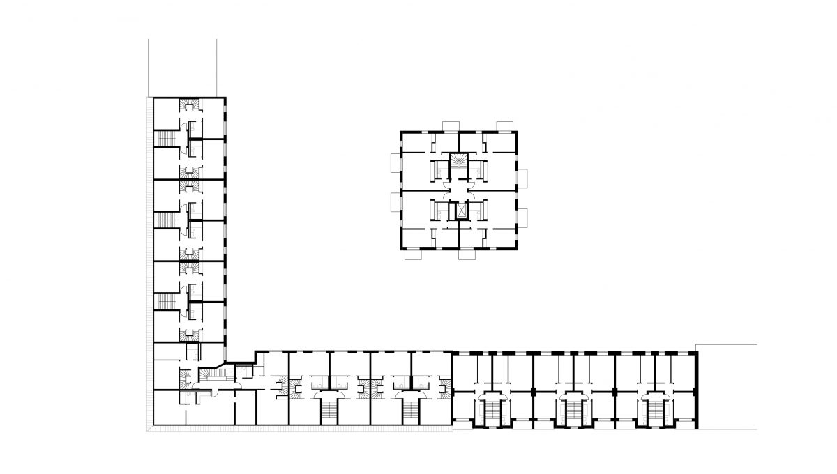
Two central approaches underpin the project: firstly, the aim was to develop a construction kit for innovative and affordable housing in timber construction without a specific plot of land. How can I create as much quality space as possible on as little space as possible and build it with the highest possible degree of prefabrication in the shortest possible time? Secondly, the specific project involved a respectful yet curiously ambitious approach to the existing building. The striking corner building with its typical façade of plaster and clinker brick and its horizontal structure is being extended by two storeys in timber construction. The intervention is barely noticeable from the street side, as the geometry of the steep pitched roof has not been altered. In addition, a four-storey freestanding new building, also in timber construction, is being built in the quiet inner area of the block, which carefully complements the ensemble and at the same time creates a significant qualitative upgrade.





Where previously uniform two-room apartments dominated the existing housing stock, the design now creates diversity: around 50 new apartments are being built, including spacious family apartments, the majority of which are designed to be barrier-free. The new mix not only creates more living space, but also more community and a better quality of life. The neighborhood development thus follows the basic idea of social interaction – cross-generational, integrative and open. In order to keep rents at an affordable level, the new building was planned to be very cost-efficient. Visible concrete in the staircase core, visible wooden elements in the apartments, a light plastered façade with a slightly greenish tone that embeds the building in the greenery of the inner courtyard. The design of the exterior goes hand in hand with the architectural intention. The decision to build a safety stairwell in the new building means that the entire inner courtyard can be kept free of fire department access roads and parking spaces and is instead intensively landscaped. Green islands with scattered fruit trees, berry bushes and other flora will be created in a free arrangement, ensuring a high level of biodiversity and creating an inner-city oasis.






The project is far more than just an architectural upgrade in an established environment. It is a statement for sustainable building in the city. The use of wood as the main construction material is just as trend-setting as the heat pumps for energy generation and the specially developed modular construction system. It enables serial planning and at the same time site-specific adaptation – efficiency without loss of quality. A colorful socio-demographic mix, a targeted overfulfillment of the share of renewable energies, innovative rainwater management as a contribution to the sponge city theme for the urban microclimate and the integration of a Tiny Forest in the courtyard make the project a model of sustainable inner densification. The aspired certification for sustainable construction underlines the claim – to quality, responsibility and future viability.
The project realized here on the basis of a construction kit is exemplary for Sehw’s attitude in dealing with existing buildings and the city: building on instead of demolishing, densifying instead of displacing, designing instead of copying. With sense, system and sensitivity, a piece of the living future is created from an existing urban building block. Sustainable. Social.






-
Project type
New build & expansion
-
Purpose
Residential
-
GFA
8,515 m²
-
Project status
Completed 2024
-
Period
2021 – 2024
-
Construction cost
15,500,000 €
-
Service phases
LP1 – LP8
-
Project team
Susanne Boss
Wadim Kahlkopf
Hilka Nieselt
Eva Poggenklaß
Jennifer Reufels
Loana Sahihi
-
Photos