Hermann-Gmeiner-Grundschule

Community unites old and new

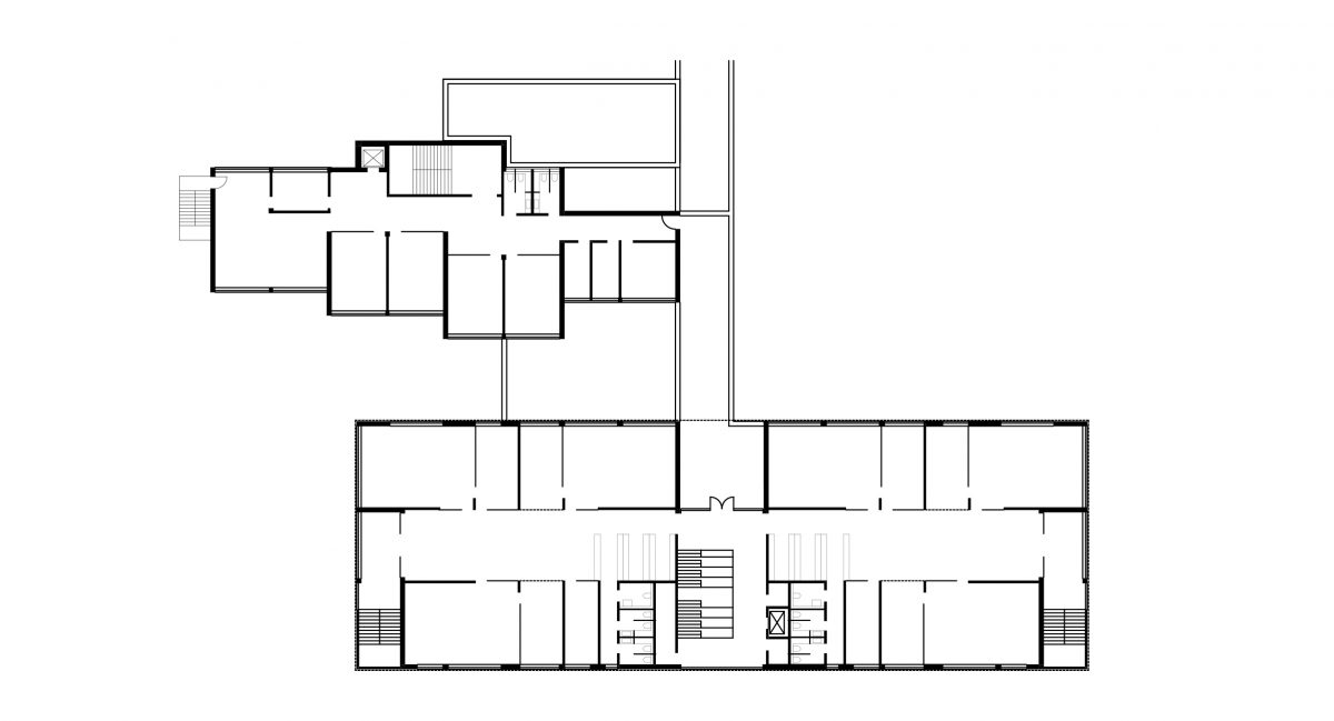
Herrman-Gmeiner Primary school, Monheim am Rhein

The new extension, designed in a joint venture with Lorber Paul Architektur und Städtebau, complements the existing building in such a way that a central schoolyard is created as the heart of the complex. Based on the existing typology, all parts of the building are connected by a covered walkway, which also functions as a weather-protected schoolyard area. On the ground floor, a transparent structure with communal uses such as a library, canteen and recreation hall connects the new and the existing building. The functional reorganisation of the school ensemble envisions that the new building will accommodate the modern learning clusters in order to create a future-oriented learning environment that can be flexibly adapted to educational requirements. The core of the idea is the so-called learning living room as an open learning space within the clusters. The existing building will be converted for administration, subject-specific rooms and other special uses. The extension is planned as a prefabricated timber construction. This not only contributes to sustainability, but also enables the project to be realised quickly, thus reducing disruption to ongoing school operations. The timber construction grid can be seen as a structure in the façade. The warm wood tone dominates together with the brightly coloured sun protection awnings.

Hermann-Gmeiner-Grundschule
  • Project type

    New construction
    Redevelopment

  • Purpose

    Education

  • GFA

    5,775 m²

  • Project status

    Planning stage

  • Period

    2024- 2028

  • Procurement

    Public tendering process

  • Awards

    Contract awarded

  • Construction cost

    23,950,000 €

  • Service phases

    1 – 8 (HOAI)

  • Project team

    Susanne Boss
    Nadine Kopetzki
    Ahmet Kürkçü
    Vincent Sadr
    Dragana Savic

     

     

  • Cooperation

    LORBER PAUL
    Architektur & Städtebau

  • Renderings